
La Embajada
“Tejo” Court and Alehouse/Gastropub | Bogotá, Colombia
Status: Built
Year: 2019
Area: 300 mt²
Renders by Camila Celis via Colette Media.
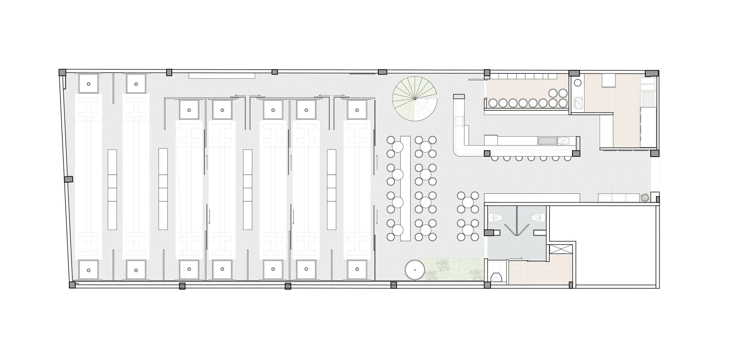
Non Grata is a locally-owned artisanal beer brand. The owners are fans — and avid players — of the Colombian national sport and cultural heritage: “tejo.” The sport consists of throwing a heavy metal disc at a box of clay; the goal is to explode the triangular paper envelopes, filled with gun powder, that lay upon a metal ring (bullseye) inside the clay. It is usually associated with drinking beer, listening to music, and the start of a night out for young adults in the city, although it has also been played professionally on different league levels.
La Embajada, a space owned by the beer brand Non Grata, was a new concept for Bogota because of its union of alehouse, restaurant and tejo court all in one place. Inspired by the original tejo courts, the intention for the design of the space was to innovate upon industrial and functional design, elevating the warehouse site and the traditional court aesthetic, to create a space that can transform fluidly to fulfill the three uses.
This project was completed while working at Colette Studio, under the supervision of co-founder Ernesto Lafaurie. Furniture curation by colleague Camila Celis. See more of the project here.





