
Frites Artois
Gastro-bar by Stella Artois | Bogotá, Colombia
Status: Built
Year: 2020
Area: 500 mt²
“Stella Artois lands in South America ready to awaken the senses of the local community in true Artois fashion. Hosting with its rich tradition, a delicate yet evolving experience by sharing the ultimate simple pleasure: a Stella. Uniting its magic with Colombia’s own, Bogota will elevate the brand’s traditional experience.”
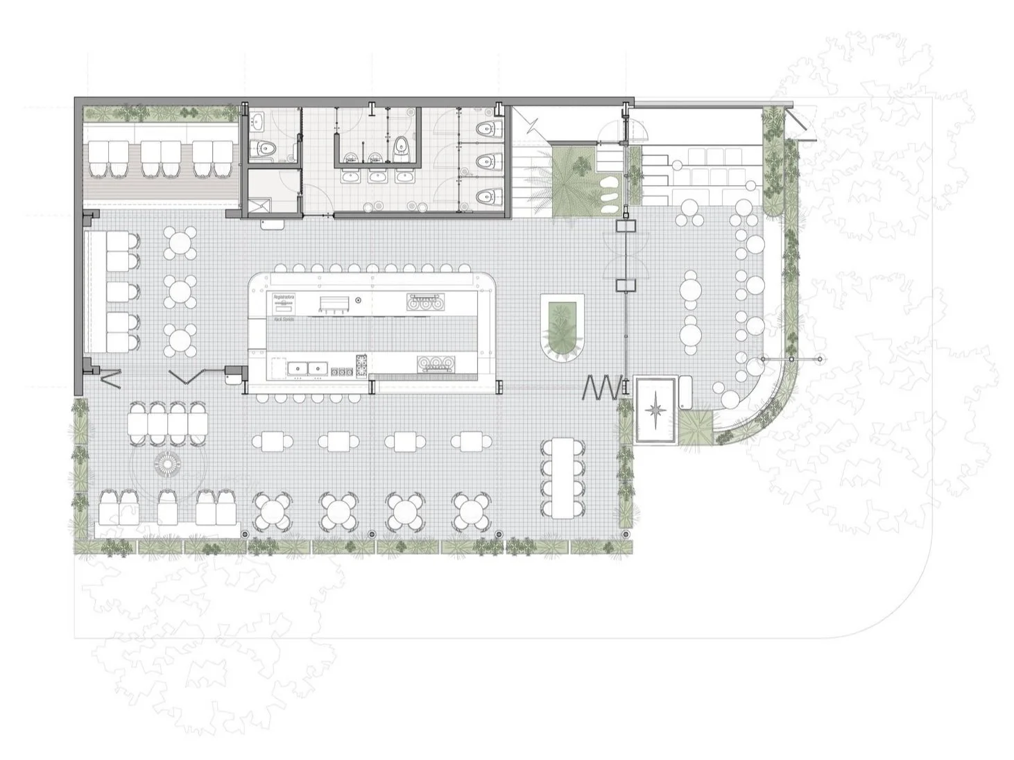
Colette Studio worked together with architect Manuel Villa to design Frites Artois, a place where beer garden and restaurant come together. The interiors were designed solely by Colette, while the architectural structure was designed as a team. The intention was to design a space that catered to the “life well lived” Stella Artois motto, while bringing Europe to Bogota in a seamless and modern manner. To achieve this, the Colette team had a central concept to fuel the design: the combination of Belgium’s Art Nouveau with Colombia’s magical-realism.
This project was completed while working at Colette Studio, under the supervision of co-founder Ernesto Lafaurie, alongside colleague Maria Camila Medina. The project was done in collaboration with architect Manuel Villa. See more of the project here.
Photographs provided through Duque Arquitectura.



















